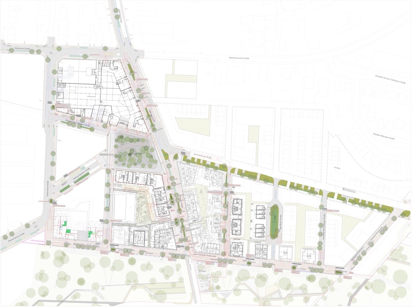
The neighborhood square is located at the intersection of the three main axes – Wachenheimer Straße, Anna-Sammet-Straße, and Völklinger Straße – and forms the green, cooling center of the new urban Spinelli neighborhood. Centrally located, the square connects the Spinelli neighborhood in the north with the BUGA grounds in the south via high-quality street spaces. A bus lane is integrated into the design and can be converted into a tram line in the future.
The rows of trees and avenues of the adjacent streets converge to form a mixed, urban forest that promotes health, urban ecology, and cultural quality of life. The existing tree species are supplemented by climate-resilient species such as tulip trees, bladder ash, hop hornbeam, and flowering ash. Despite the greenery, the square remains a paved space with a variety of uses. The pavement design echoes the materiality of the former barracks use. The bus lane consists of in-situ concrete, while the varied paving around the square consists of large trapezoidal concrete slabs.
The drainage concept follows the “sponge city” principle. Rainwater is collected and stored locally via underground tree trenches, which prevents flooding and improves the microclimate. The trenches also serve as The adjacent street spaces offer attractive recreational areas thanks to climate-resilient vegetation and promote biodiversity. Rainwater is used specifically to supply the street trees.
Intarsia adds visual and functional rhythm to the street space. A special paving pattern with clinker bricks uses materiality and color changes to signal special places in the neighborhood. They combine traffic management and slowing with recreational areas, e.g., pedestrian crossings, bicycle parking spaces, and greenery elements. In the area of ground-floor uses, such as restaurants and shops, the inlays also mark and integrate recreational areas with functions such as bicycle parking spaces and street greening for climate adaptation and ecological enhancement of the street space. The remaining paved areas are constructed using a multi-stone system, Kronimus paving, in different formats and varying widths, and support the spatial image of the promenade. The north-south banding was already included in the master plan.
Project Data
Landscape architecture: Uniola
Location: Chisinauer Platz, 68309 Mannheim, Germany
Year Completed: 2024
Photo credits: MWSP/Johannes Vogt
Plans: Uniola AG








